APPARTEMENT MEUBLÉ 3 PIÈCES AVEC LOGGIA ET JARDIN – LOYER PLS

3 pièces, 2 chambres, 62.8 m² - Appartement - Exclusivité
1 176 € / mois *

Le bien

En quelques mots
APPARTEMENT MEUBLÉ 3 PIÈCES AVEC LOGGIA ET JARDIN - LOYER PLS LOCATION MEUBLÉE SOUMISE À DES PLAFONDS DE RESSOURCES PLS (VOIR TABLEAU EN PHOTO) - LIBRE À COMPTER DU 1ER AVRIL 2026.

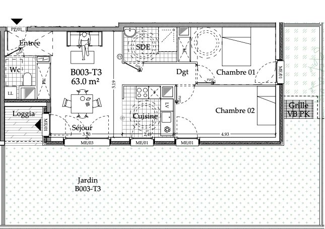
RUE DES RUFFINS, DANS UNE COPROPRIÉTÉ DE 2024, RÉSIDENCE SÉCURISÉE PAR DIGICODE ET INTERPHONE, À L’ABRI DES REGARDS, EN REZ-DE-JARDIN : APPARTEMENT 3 PIÈCES D’UNE SURFACE DE 63 m² COMPRENANT : UNE ENTRÉE, UN SÉJOUR AVEC LOGGIA DE 3,5 m², UNE CUISINE AMÉNAGÉE ET ÉQUIPÉE, UN DÉGAGEMENT, DEUX CHAMBRES, UNE SALLE D’EAU, DES WC SÉPARÉS, PLACARDS.
LE JARDIN DE 70 m² EST ACCESSIBLE DEPUIS LE SÉJOUR, LA CUISINE ET L’UNE DES CHAMBRES.
APPARTEMENT MEUBLÉ AVEC GOÛT, EN EXCELLENT ÉTAT GÉNÉRAL.
POSSIBILITÉ DE LOUER UN EMPLACEMENT DE PARKING (70euros) EN SUPPLÉMENT.

POUR CANDIDATER, VEUILLEZ VÉRIFIER VOTRE ÉLIGIBILITÉ (VOIR PLAFONDS DE RESSOURCES PLS).
LES VISITES SERONT PROGRAMMÉES UNE FOIS LE DOSSIER COMPLET REÇU ET VALIDÉ.
* Charges mensuelles : 160.72 €
Dont honoraires : 971.25 %
Secteur
Code postal : 93100
Ville : Montreuil
Pays : France
Détails
Surface : 62.8 m²
Nombre de pièces : 3
Chambres : 2
Type de chauffage : collectif gaz radiateur
Consommation énergétique : 40
Classification énergétique : B
Emission GES : 6
Classification GES : B
Image référence DPE/GES
Options
Ascenseur
Contactez-nous pour ce bien
  • Vous disposez d’un droit d’inscription sur la liste d’opposition au démarchage téléphonique disponible à l’adresse suivante : https://www.bloctel.gouv.fr/

Montreuil

15 Rue des Lumières Centre Grand Angle 93100 Montreuil
Téléphone : 01 48 35 13 13
Email : montreuil@morissimmobilier.com
Achat, vente, location et estimation de biens immobiliers à Montreuil Une équipe de 8 personnes à votre service du lundi au samedi, de 9H30 à 19h30, visite le dimanche sur RDV.